【大自然と共に】
阿蘇の山中にあるポツンと物件。広大な敷地で管理は大変そうだけど、まわりの大自然がぜんぶ庭だと思えばテンション上がって良き。冬は寒さが厳しそうだけど薪ストーブでしのげそう。築9年なのでお値段高め。
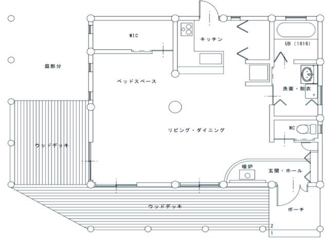
間取りはこんな感じ。デッキが広くていいなぁ。
熊本県小国町1800万円/建物76㎡/土地7394㎡
athome.co.jp/kodate/6973484…
【大自然と共に】
阿蘇の山中にあるポツンと物件。広大な敷地で管理は大変そうだけど、まわりの大自然がぜんぶ庭だと思えばテンション上がって良き。冬は寒さが厳しそうだけど薪ストーブでしのげそう。築9年なのでお値段高め。
間取りはこんな感じ。デッキが広くていいなぁ。
熊本県小国町1800万円/建物76㎡/土地7394㎡
athome.co.jp/kodate/6973484…